ŞEHİTKAMİL BELEDİYESİ

 
  • ŞEHİTKAMİL
    • Genel Bilgiler
    • Tarihçe
  • YÖNETİM
    • BAŞKAN YARDIMCILARIMIZ
      • Yusuf AÇIKGÖZ
      • Ceyda GÜRSEL
      • Umut SALCAN
      • Hakan ASLANSOY
      • Hülya KILIÇ
      ESKİ BAŞKANLARIMIZ
      • M.Rıdvan FADILOĞLU
      • Metin Özkarslı
      • Mehmet Bozgeyik
      • Ahmet Yılmaz
      İÇ DENETİM
      MECLİS ÜYELERİMİZ
      ETİK KOMİSYONU
      MUHTARLARIMIZ
    • MÜDÜRLÜKLER
      • Basın Yayın ve Halkla İlişkiler
      • Bilgi İşlem
      • Destek Hizmetleri
      • Afet İşleri
      • Emlak ve İstimlak
      • Fen İşleri
      • Hukuk İşleri
      • Gelir
      • İmar ve Şehircilik
      • İnsan Kaynakları ve Eğitim
      • Kültür ve Sosyal İşler
      • Muhtarlık İşleri
      • Mali Hizmetler
      • Özel Kalem
      • Park Bahçeler
      • Ruhsat ve Denetim
      • İklim Değişikliği ve Sıfır Atık
      • Sağlık İşleri
      • Teftiş Kurulu
      • Plan ve Proje
      • Yapı Kontrol
      • Yazı İşleri
      • Zabıta
      • Makine İkmal Ve Onarım
      • Sosyal Yardım İşleri
      • Temizlik İşleri
      • Arşiv
      • Kütüphane
      • Gençlik ve Spor Hizmetleri
      • Kültürel Miras Koruma
      • Tesisler
      • Dış İlişkiler
      • Veterinerlik İşleri
  • E-PORTAL
  • TESİSLER
    • Tesislerimiz
  • İLANLAR
    • Duyurular
    • Plan Proje Duyuru
    • Yayınlarımız
    • İhaleler
    • Dilekçe Örnekleri
    • Meclis Gündemi
  • İLETİŞİM

Umut YILMAZ

Şehitkamil Belediye Başkanı
Biyografi Başkandan Mesaj Atın Twitter Facebook
Bu duyurunun süresi dolmuştur.

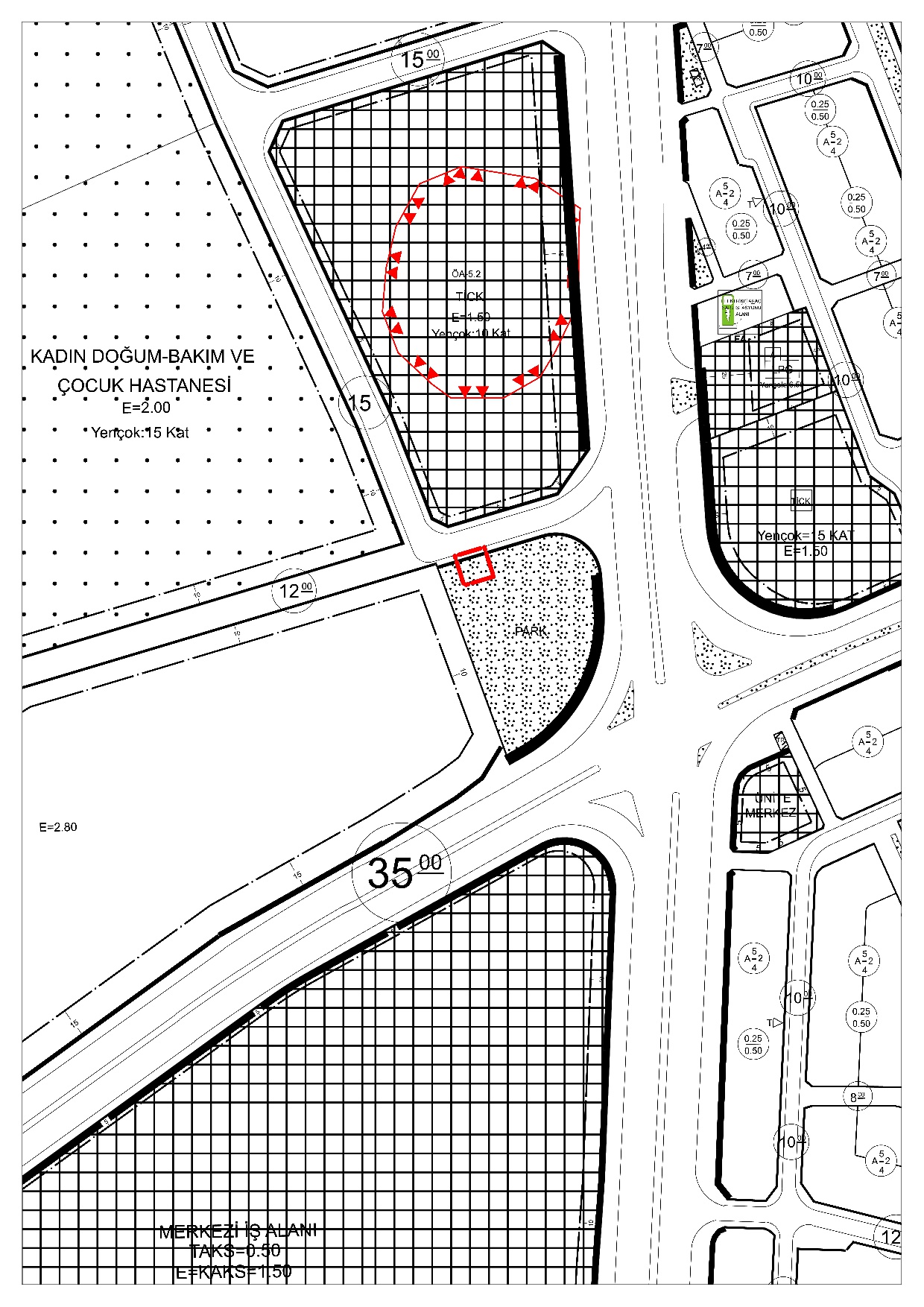
İlçemiz Muhtelif Mahallelerinde Trafo Alanı Uygulama İmar Planı Değişikliği

  • Askı Çıkış Tarihi: 24-09-2025 08:00
  • Askı İniş Tarihi: 24-10-2025 17:00

Dosya Adı  
17586968942-2-Izah-Raporu-.pdf Görüntüle

Plan Proje Duyurulari

  • 29 Ekim Mahallesi İmar Uygulaması
  • Göktürk Mahallesi İmar Planı Değişikliği
  • Atatürk Mahallesi ve Karacaahmet Mahallesi İmar Planı Değişikliği
  • Seyrantepe Mahallesi İmar Planı Değişikliği
  • Fıstıklık Mahallesi İmar Planı Değişikliği
  • Selahattin Eyyübi Mahallesi İmar Planı Değişikliği
  • İbrahimli Mahallesi İmar Uygulaması
  • Belkıs Mahallesi İmar Uygulaması
  • Aktoprak Mahallesi İmar Uygulaması
  • Ağaçlı Mahallesi İmar Uygulaması
  • Aktoprak Mahallesi İmar Uygulaması
  • Karacaören Mahallesi İmar Uygulaması
İletişim
  • ADRES : Sanayi Mahallesi 60725 Nolu Cad. No:34
  • TELEFON : 0342 323 27 27
  • FAKS : 0342 324 75 75
  • E-MAİL : belediye@sehitkamil.bel.tr
  • KEP ADRESİ : sehitkamil@hs01.kep.tr
KVK Kapsamında Aydınlatma Beyanı
Haberdar Olmak İstiyorum